Обяви За нас Контакти
Продава КЪЩА
град София, с. Владая
622 706 €
1 217 907.08 лв.

(1 898 €, 3 712.17 лв./m2)
Цената е с включено ДДС
Коригирана в 12:11 на 21 януари, 2026 год.
Обявата е посетена 1373 пъти.
Площ:
328 m2
Двор:
22 m2
Строителство:
Тухла, Ще бъде въведен в експлоатация 2026 г.

Описание на имота:


Sofia In /www.sofiain.com/ представя на Вашето внимание:

Ексклузивна самостоятелна къща в бутиков проект.Къща К3 е част от лимитиран дизайнерски комплекс, състоящ се само от три къщи, проектирани от студио GOEV. Тя предлага уникално съчетание на модерен минимализъм, природна естетика и уединение. Комплексът се намира в централната част на село Владая, на тихо и зелено място. Перфектна комбинация от спокойствие, чист въздух и панорамни гледки. Обградена от озеленен терен с богата растителност и високи дървета, които осигуряват естествена визуална преграда и усещане за уединен дом.

Къща К3 впечатлява със своя модерен и изчистен стил, съчетаващ съвременен минимализъм и балансирани обеми. Архитектурата ѝ следва изчистени линии и подчертава усещане за лекота и хармония. Визията на фасадата е оформена с три внимателно подбрани материала декоративна тухла, HPL панели с дървесен ефект и декоративна мазилка, обединени в топла земна цветова палитра, която се вписва естествено в заобикалящата природа.

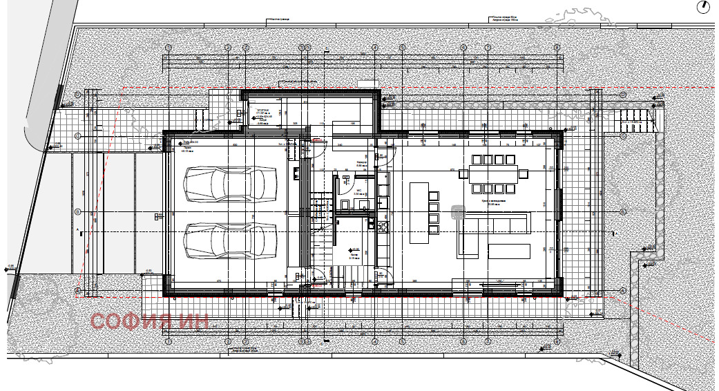
Разпределение:

Първи етаж (основно ниво, кота 0.00)

антре 6.88 кв.м
Просторна кухня и всекидневна (отворено пространство) 63.95 кв.м
Коридор 8.04 кв.м
Килер / складово помещение 9.17 кв.м
Тоалетна 3.30 кв.м
Стълбище към втория етаж 2.82 кв.м
На малко по-ниско ниво (-0.45 м), се намира:

Гараж за две коли 48.51 кв.м, с директна връзка към къщата.
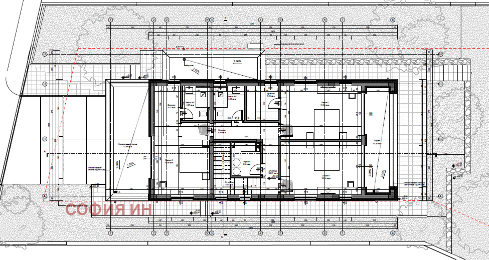
Втори етаж (кота +3.20)

Разпределението включва:

Спалня 1 20.94 кв.м с излаз към тераса на север 11.29 кв.м
Спалня 2 21.36 кв.м, със собствен дрешник 5.25 кв.м и излаз към същата тераса
Спалня 3 19.05 кв.м, също с дрешник 4.77 кв.м и собствена баня с тоалетна 4.77 кв.м
Стълбищна клетка 6.33 кв.м
Коридор 10.00 кв.м
Перално помещение 4.44 кв.м
Баня с тоалетна 5.46 кв.м
На етажа има и:

Неизползваем покрив (плосък, над част от помещенията) 17.48 кв.м

Височина на помещенията:
Конструктивна: 3.20 м
Чиста (вътрешна): 2.80 м

Функционални решения и удобства:

Къщата е напълно самостоятелна, с индивидуален вход и двор, което я прави отличен избор за тези, които ценят личното пространство.

Към нея е проектиран гараж за две коли с топла връзка към основната сграда удобно и практично решение за всяко семейство. Около имота е предвидена обходна пътека от гранитни плочи, а пред гаража циментови плочи с тревна фуга, придаващи стилен и естествен вид.

Озеленяване и дворна среда:

Дворното пространство е богато озеленено, с акцент върху многогодишни цветя, декоративни треви и ниски храсти, както широколистни, така и иглолистни.

Пред къщата са предвидени открити веранди с гранитна настилка, създаващи уютна атмосфера за почивка на открито. Целият имот е ограден с плътна ограда с височина 60 см, допълнена от ажурна метална конструкция до 220 см, която осигурява както сигурност, така и визуално уединение, без да нарушава естетиката на околната среда.

Къща К3 е самостоятелно разположена в имота, с ясно обособено допълващо застрояване гараж за две коли, разположен на дилатационна фуга и свързан функционално с основната сграда.

Гъвкавост при реализацията: Възможни са промени по проекта в съответствие с предпочитанията на бъдещите собственици, с цел постигане на максимален комфорт и удовлетворение.

Етап на строителство:Акт 14

ПРИ ИНТЕРЕС ОТ ВАША СТРАНА МОЖЕ ДА СЕ СВЪРЖЕТЕ С ОТГОВОРНИЯ КОНСУЛТАНТ ЗА НАЧИНА НА ПЛАЩАНЕ И ФИНАНСИРАНЕ НА ПОКУПКАТА.
Особености
Тухла
С гараж
За контакт:
0882692050
Брокер:
Надежда Панчева
0882692050
Още оферти от брокера: Продава | Дава под наем | Купува | Наема
Агенция:
СОФИЯ ИН
0882654100
СОФИЯ ИН logo
Медал за прослужено време
В imot.bg от 2020 г.
sofiain.imot.bg
Адрес:
област София, гр. София, ул. 'Нишава' 153, ет. 1
http://www.sofiain.com
ИЗПРАТИ ЗАПИТВАНЕ
ИЗПРАТИ ЗАПИТВАНЕТО

Продава КЪЩА
град София, с. Владая
Обява: 1j175310354914836

622 706 €
1 217 907.08 лв.
(1 898 €, 3 712.17 лв./m2)

Цената е с включено ДДС
ЗАПАЗИ ОБЯВАТА

Местоположение: град София, с. Владая

Допълнителни данни за имотите в района и сравнение с други райони

Покажи

Период

и 2 месеца

* Средните цени са определени чрез медианна стойност